T1级和T2级SCB后备保护器在参数上存在一些差异,这些差异主要反映了它们在不同雷电防护分区中的应用需求。以下是对T1级和T2级SCB后备保护器参数的详细比较:
试验波形:10/350μs,这是雷电冲击电流的标准波形,用于模拟直击雷的冲击。
冲击电流参数:常见的有12.5KA、15KA、20KA、25KA等,这些参数反映了保护器能够承受的雷电冲击电流的大小。
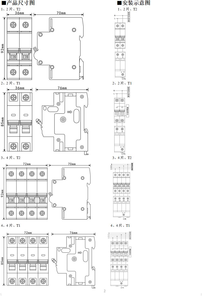
宽度:大部分厂家的T1级后备保护器都是36模数宽,少数能做到18模数宽(针对12.5KA、15KA的参数)。
其他参数:可能还包括额定工作电压、短路电流分断能力、外壳防护等级等,具体参数值会因不同厂家和产品而异。
试验波形:8/20μs,这是用于模拟感应雷冲击的标准波形。
放电电流参数:常用的有80KA、60KA、40KA、20KA等,这些参数反映了保护器在雷电防护分区LPZ1-LPZ2中能够承受的放电电流的大小。
宽度:T2级后备保护器的宽度通常为18模数,但当放电电流超过80KA时,宽度会增加到36模数(如100KA、120KA等)。
其他参数:同样可能包括额定工作电压、短路电流分断能力、外壳防护等级等,具体参数值也会因不同厂家和产品而异。
应用场景:T1级后备保护器主要用于雷电防护分区LPZ0-LPZ1的浪涌防护,能够承受较大能量的直击雷冲击;而T2级后备保护器则主要用于雷电防护分区LPZ1-LPZ2的浪涌防护,其通流量要求相对较小。
冲击电流/放电电流:T1级后备保护器的冲击电流参数通常较大,以应对直击雷的冲击;而T2级后备保护器的放电电流参数则根据具体应用场景而定,但通常不会超过其设计范围。
宽度:由于T1级后备保护器需要承受更大的冲击电流,因此其宽度通常较大(36模数为主);而T2级后备保护器在放电电流较小的情况下,宽度可以较小(18模数为主),但当放电电流增大时,宽度也会相应增加。
其他参数:虽然T1级和T2级后备保护器在额定工作电压、短路电流分断能力、外壳防护等级等方面可能存在差异,但这些差异通常不是决定性的,而是根据具体应用场景和厂家设计而定。
综上所述,T1级和T2级SCB后备保护器在参数上存在差异,这些差异反映了它们在不同雷电防护分区中的应用需求和设计特点。在选择后备保护器时,应根据具体应用场景和浪涌保护器的参数来确定合适的型号和规格。
T1级SCB后备保护器参数和T2级SCB后备保护器参数及比较

T1级SCB后备保护器参数

T2级SPD后备保护器SCB
■产品概述
依据相关标准(GB18802.1和GB50057)相关规定,SPD回路前端必须串联过电流保护电器。而市面上现有的普通过电流保护器多是用于保护后端用电设备的熔断器或断路器,无法与SPD有效协调配合,难以实现防雷保护功能,严重的甚至会引起火灾的发生。
目前与SPD大量配套使用的熔断器或断路器有以下三点不协调:
1、雷电流冲击时,误分断、易损坏——SPD无法发挥防雷保护功能;
2、SPD短路时,工频续流不分断——SPD失效或短路时线路电流不大,难以满足熔断器和断路器的分断电流要求,熔断器和断路器不能分断电流,易致使SPD发热自燃,引发起火事故;
3、雷电流冲击时,残压高——设备防雷保护可靠性降低。
针对以上产品不协调情况,我司经过长期研发及大量试验验证开发出本系列SPD后备保护器产品,能与SPD有效协调配合,实现防雷保护功能,解决了使用熔断器或断路器作为SPD后备保护器存在安全隐患的问题。
本产品与SPD配合使用的直接效果是:大雷电冲击下,不分断,确保防雷保护功能有效发挥;SPD发生故障时,小工频电流流过迅速分断,确保电网和用电安全。
■产品特点
● 大雷电冲击电流不分断、不损坏,确保SPD防雷保护有效。
● 故障工频续流分断能力强,确保电网及用电安全。
● 雷电流冲击残压低,提高防雷可靠性。
● 2片/4片、T1:可带遥信报警功能。
■技术参数
名称 | 雷科星产品型号 | 规格 | 配合SPD参数Imax (kA,8/20μs) | 配合SPD参数Iimp (kA,10/350μs) | 工频电流 分断次数 (次) | 工频脱 扣电流 (A) | 额定工 作电压 Ue(VAC) | 防护等级 | 工作 温度 (℃) |
LKX-SCB/40 | 2片、T2 | 40 | — | 1000 | 3 | 230/400 | IP20 | -25~+60 | |
LKX-SCB/60 | 60 | — | |||||||
LKX-SCB/80 | 80 | — | |||||||
LKX-SCB/100 | 100 | — | |||||||
LKX-SCB/15G | 2片、T1 | — | 15 | ||||||
LKX-SCB/25G | — | 25 | |||||||
LKX-SCB/40 | 4片、T2 | 40 | — | ||||||
LKX-SCB/60 | 60 | — | |||||||
LKX-SCB/80 | 80 | — | |||||||
LKX-SCB/100 | 100 | — | |||||||
LKX-SCB/15G | 4片、T1 | — | 15 | ||||||
LKX-SCB/25G | — | 25 |
■安装说明
● 安装前必须切断电源,严禁带电操作。
● 安装时请根据安装示意图所示连接,其中L、L1、L2、L3为相线,N为零线,PE为地线,切勿错接。安装完成后,合上SPD专用后备保护器,检查工作状态是否正常。
● 连接线要求牢固可靠,且要求短、粗、直。

扫一扫咨询微信客服