









■产品用途
该产品用于防雷产品的雷电计数,准确记录雷击次数。
■产品特点
● 高准确率计数。
● 接线简易,安装方便,实用性强。
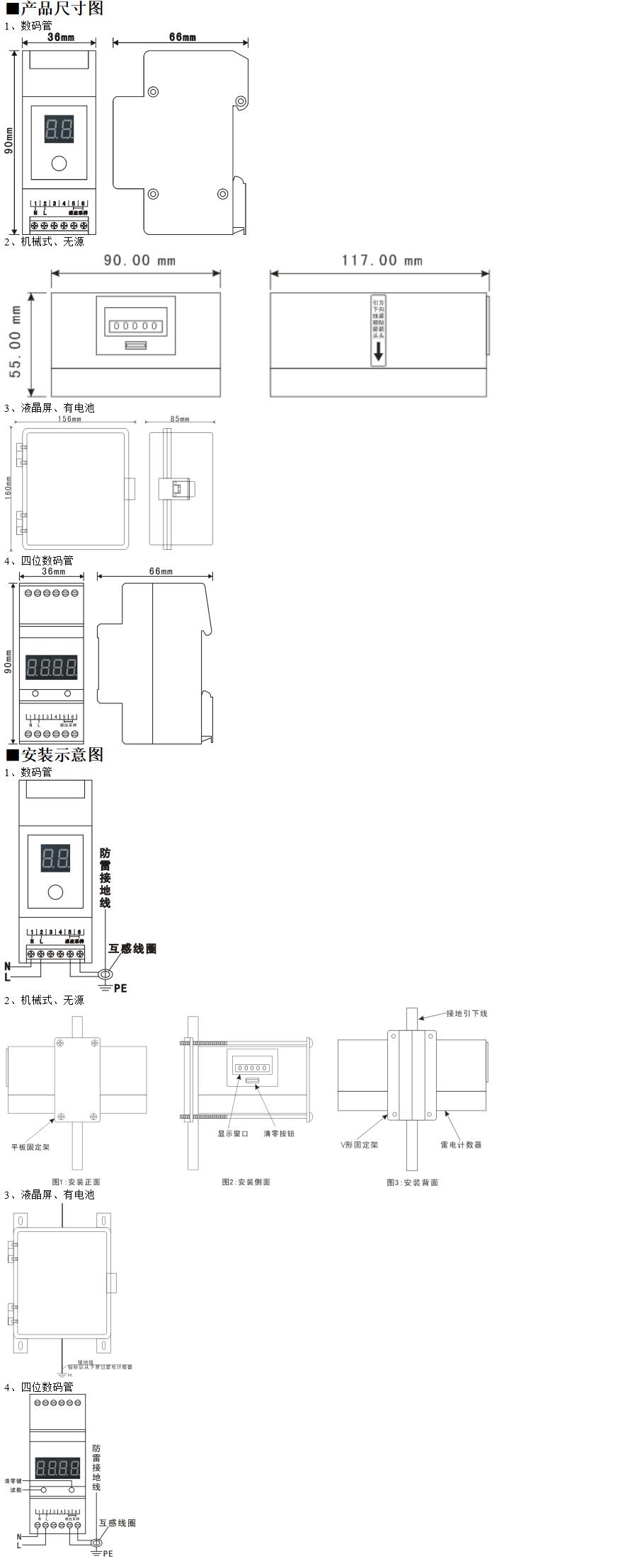
● 数码管/四位数码管:35mm导轨式安装;
机械式、无源:无需外加电源;
液晶屏、有电池:液晶屏显示,方便查询雷击信息。
■技术参数
名称 | 型号 | 规格 | 启动电流 (kA) | 额定工作电压 Un(VAC) | 计数范围 | 工作温度 (℃) | 外形尺寸(mm) |
雷电计数器 | LKX-LJS | 数码管 | 1 | 220 | 0~99 | -40~+85 | 90×36×66 |
LKX-LJS | 机械式、无源 | 10 | - | 0~99999 | -40~+85 | 117×90×55 | |
LKX-LJS | 液晶屏、有电池 | 1 | 3.6 | 0~99 | -40~+85 | 160×156×85 | |
LKX-LJS | 四位数码管 | 1 | 220 | 0~9999 | -40~+85 | 90×36×66 |
■安装说明
1、数码管/四位数码管:
● 安装前必须切断电源,严禁带电操作。
● 采用35mm导轨式安装。
● 安装时请根据安装示意图所示连接,其中N(1)为零线,L(2)为相线,PE为地线,感应采样(5,6脚)接互感线圈的两引出线(可任意连接),地线穿过传感线圈后接入地网,切勿错接。
● 睡眠状态下按计数器的“读数”按钮,窗口即显示雷击次数。20秒不操作,计数器即自动进入睡眠状态。
● 雷电计数器的计数范围为0-99(四位数码管雷电计数器的计数范围为0-9999),其计数最小动作电流为1kA。
● 非专业人员请勿拆卸。
2、机械式、无源:
● 用长螺丝、两固定架将接地引下线套在中间。
● 将雷电计数器(有箭头标签的一面朝接地引下线)插入固定架。
● 确定好合适位置后拧紧螺丝。
● 安装完成后,确保雷电计数器紧贴在接地引下线上,且引下线紧贴在雷电计数器箭头标签的中央位置。
● 安装完成后,对雷电计数器进行清零操作,使雷电计数器的显示值显示为“00000”且数字显示在同一直线上。清零方法:对清零按钮(如安装示意图所示)按压即可使计数值置零(显示“00000”)。
● 非专业人员请勿拆卸。
3、液晶屏、有电池
● 安装时可分别将配件中的四个固定板固定在雷电计数器背面,并通过固定板将其固定在墙体上。
● 安装时请根据安装示意图所示连接,请确保接地线从雷电计数器背面中央(即雷电计数器背面的标识处)穿过雷电计数器。安装完成后,确保雷电计数器紧贴在接地线上,且接地线紧贴雷电计数器箭头标签。
● 在睡眠状态下按任意按钮,窗口即显示雷击次数和当前日历时间(此时为待机状态)。待机状态下按“查询”按钮,进入雷击时间查询状态;待机状态下长按(按下时间超过1秒)“设置”按扭,进入日历时间设置。
● 在进入时间设置或查询状态时,20秒不操作即可自动返回待机状态,进入待机状态16秒不操作即可自动进入睡眠状态。
● 非专业人员请勿拆卸。

扫一扫咨询微信客服